Modern Coastal Sussex
This property benefits from spectacular waterside views. Throughout the house, materials such as glass, stone and timber – complemented by clean lines, white walls and generous windows – creates a sense of natural calm. Every item has been selected with shape and form in mind. The upstairs living area has double-height ceilings and bi-fold doors, which open to a large terrace. An elegant – but L-shaped sofa sits in the centre of the space.
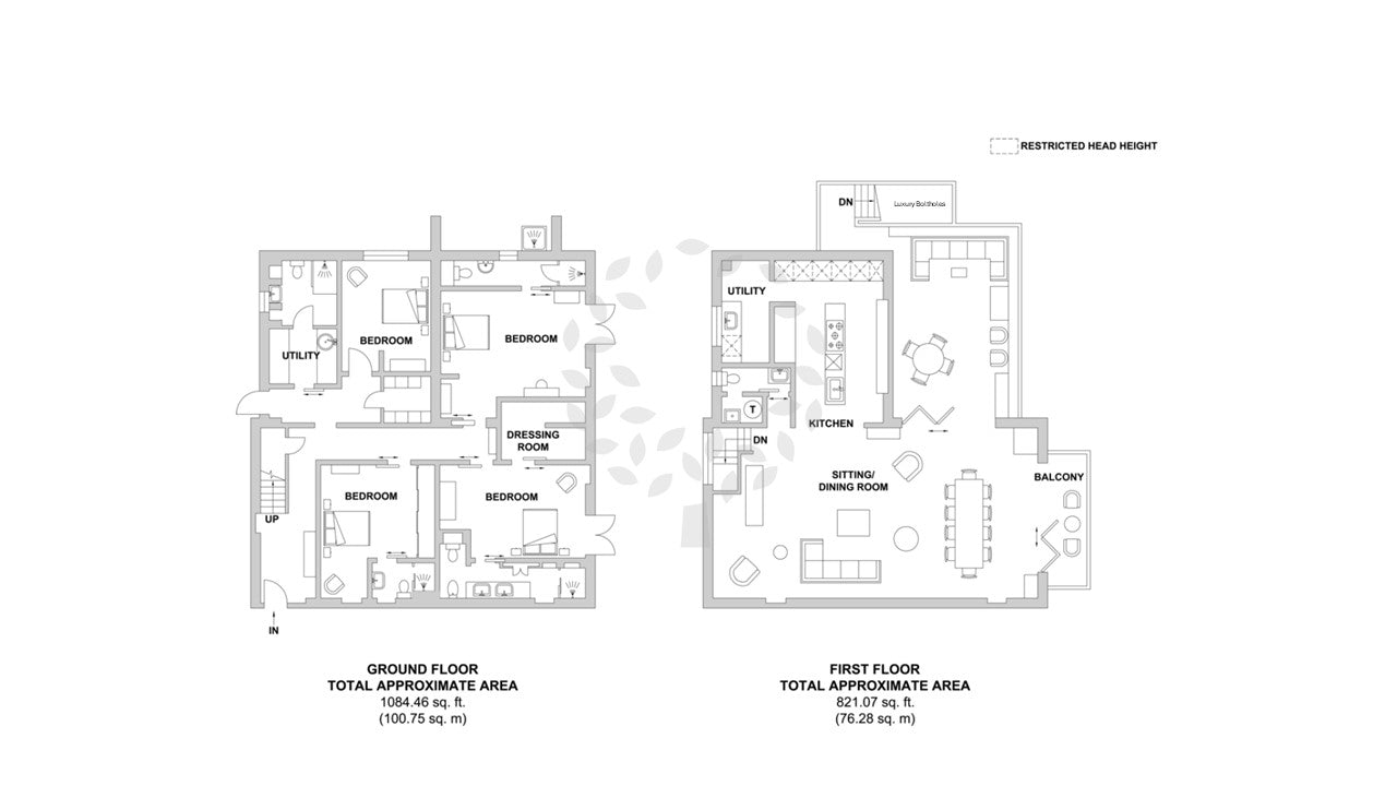
Throughout the ground floor, a neutral palette combines with pops of colour and contemporary artwork The master bedroom has French doors leading out to the gardens, and an en-suite. Bedroom two has a king sized bed, with en-suite shower room, and allows you direct access to the garden.
Outside, you'll discover four fantastic spaces. At the front of the house, facing the shore, a Mediterranean-style garden with olive trees forms a peaceful zone, leading onto a casual dining area and then straight onto the shingle beach beyond.
Available for Day & Overnight use.
Contact info@luxuriouslocations.com for availability and pricing or if you have any questions.
Location
-
Sussex
Features
- Waterfront Property
- Private Beach
- 3 Bedrooms
- Coastal Views
- Kitchen
- Free Parking
Share


































